佐伯区皆賀1丁目 No.3

4,980万円

広島県広島市佐伯区皆賀1丁目6-3

広島電鉄宮島線「修大協創中高前」駅徒歩12分

山陽本線「五日市」駅徒歩15分

広島電鉄「井口四丁目」バス停

価格
4,980万円
間取り
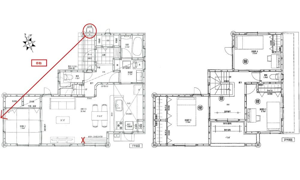
4LDK
土地面積
149.70㎡
所在地
広島県広島市佐伯区皆賀1丁目6-3
交通

広島電鉄宮島線修大協創中高前」駅 徒歩12分

山陽本線五日市」駅 徒歩15分

広島電鉄「井口四丁目」バス停下車 徒歩5分

建物面積
104.33㎡
築年月
2025年1月(新築)

物件の特徴

  • バストイレ別

  • 室内洗濯機置場

  • TVモニタ付きインターホン

  • カウンターキッチン

  • 独立洗面台

  • 浴室乾燥機

セールスポイント

☆最短1分で結果が分かる住宅ローン診断を実施♪
☆選べる成約特典20万円分

基本情報

販売戸数
-
総戸数
-
間取り / 詳細
4LDK
LDK 17.5帖 1室/和室 4.5帖 1室/洋室 7.0帖 1室/洋室 5.4帖 1室/洋室 5.2帖 1室
4LDK
向き
-
建物面積(坪数)
104.33㎡(31.55坪)
土地面積(坪数)
149.70㎡(45.28坪)
建ぺい率 /
容積率
60%/200%
築年月
2025年1月(新築)
駐車場 /
月額料金
有(2台) 0円 並列2台駐車可能
土地権利
所有権
土地
(敷金 / 保証金)
- / -
建物構造
木造 / 2階建
傾斜地部分面積
-
路地状敷地
-
私道負担面積
135.00㎡
私道負担割合 : 1/4
セットバック
高圧線下面積
-
施工会社
-
用途地域
第二種中高層住居専用
地目 / 地勢
宅地 / -
接道状況
一方(北西 公道 5.2m)
国土法届出要否
不要
都市計画
市街化区域
総区画数 /
販売区画数
-/-
現況
完成済み
その他
法令上の制限
-
取引態様
仲介
引渡し
即時
取引条件の
有効期限
2026年01月22日

設備条件

設備条件
  • 陽当り良好 / 閑静な住宅地 / バリアフリー / 室内洗濯機置場 / フローリング / 都市ガス / 公営水道 / 公共下水 / 駐輪場 / 駐車2台可 / ガスコンロ / コンロ2口以上 / 食器洗い乾燥機 / システムキッチン / コンロ3口 / カウンターキッチン / バス・トイレ別 / 追焚機能浴室 / 浴室乾燥機 / 温水洗浄便座 / 洗髪洗面化粧台 / トイレ2ヶ所 / 浴室1坪以上 / 独立洗面台 / 床下収納 / ウォークインシューズクロゼット / 屋根裏収納 / TVモニタ付インターホン / 宅配ボックス / 複層ガラス / ディンプルキー
設備(その他)
    -

その他

物件番号
98036806
管理コード
35914
建築確認番号
-
情報更新日
2026年01月15日
次回更新予定日
2026年01月22日
取扱会社
  • 株式会社 廣島明和
  • 広島県広島市西区中広町2丁目1-1 第一太田ビル 202
  • TEL:082-942-0884
  • 広島県知事 (3) 第009897号
備考
◆JR五日市駅まで徒歩約15分
◆修大協創中高前電停まで徒歩約12分
◆車通りの少ない閑静な住宅街
◆WIC、SICなど収納充実設計
◆宅配BOX完備
◆スーパー徒歩約10分
◆小学校徒歩約5分
◆子育て環境良好◎

【ご成約特典】
◇20万円分の商品券等プレゼントまたは諸費用割引キャンペーン◇
詳細はお気軽にお問い合わせください。

【購入サポート】
◆当社指定の引越し業者で大幅値引き
◆お引越し費用・家具家電費用はもちろん、
他社借入やカーローンの残債を住宅ローンの低金利でまとめて借入可能
◆住宅ローンを複数社断られたことのある方のご成約実績あり!まずはご相談ください♪

周辺施設

  • Spark(スパーク) 鈴ケ峰店の画像

    スーパー

    Spark(スパーク) 鈴ケ峰店

    762m(10分)

  • 広島市立五日市中学校の画像

    中学校

    広島市立五日市中学校

    1968m(25分)

支払いシミュレーション

月々の支払額
9.6
購入希望物件価格
万円
頭金
万円
金利
%
返済額(ボーナス1回分)
万円
返済期間

※ボーナスは自動で年2回分で計算されます。

近隣の物件

  1. 佐伯区皆賀1丁目No.1

    広島市佐伯区皆賀1丁目

    4LDK (104.33㎡)

    4,780万円

  2. 佐伯区皆賀1丁目 No.2

    広島市佐伯区皆賀1丁目

    4SLDK (108.99㎡)

    4,950万円

  3. 佐伯区千同1丁目 No.D

    広島市佐伯区千同1丁目

    4LDK (103.90㎡)

    3,980万円

  4. 佐伯区千同1丁目 No.A

    広島市佐伯区千同1丁目

    4LDK (109.30㎡)

    4,050万円

佐伯区皆賀1丁目 No.3

佐伯区皆賀1丁目 No.3

4,980万円

-

4LDK(104.33㎡)

お気軽にお問い合わせください

無料お問い合わせ

株式会社 廣島明和

082-942-0884

9:00〜19:00

(休:年末年始のみ)