可部南1丁目 全5棟

2,880万円

広島県広島市安佐北区可部南1丁目32

可部線「中島」駅徒歩15分

芸備線「下深川」駅徒歩26分

広島交通「安佐北区スポーツセンター入口」バス停

価格
2,880万円
間取り
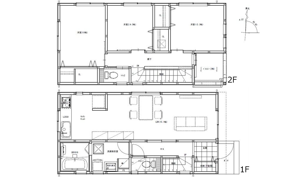
4SLDK
土地面積
108.57㎡
所在地
広島県広島市安佐北区可部南1丁目32
交通

可部線中島」駅 徒歩15分

芸備線下深川」駅 徒歩26分

広島交通「安佐北区スポーツセンター入口」バス停下車 徒歩9分

建物面積
97.50㎡
築年月
2024年4月(築1年)

物件の特徴

  • TVモニタ付きインターホン

  • カウンターキッチン

  • 浴室乾燥機

セールスポイント

☆自己資金ゼロ・少額手付金で購入可
☆ご成約特典20万円分キャッシュバック

担当者のコメント

佐藤 允春

☆「今日見たい」にもすぐ対応します
☆住宅ローンのご相談・事前審査をして頂いた方に5000円分クオカードプレゼント!

車や他借入がある方、家具や家電を買い換えたい方も大丈夫☆
住宅ローン+500万円迄住宅ローンの低金利で一本化出来るプランもあります☆
最長50年の住宅ローンも取り扱い可能です☆(完済時年齢満80歳未満に限ります)

お支払い例
頭金0円・ボーナス払い無し
住宅ローン借入れ2880万円~3280万円の場合 月々66920円~76214円
※変動金利・480回払い・金利0.555%の場合

基本情報

販売戸数
-
総戸数
5戸
間取り / 詳細
4SLDK
1F 17.63LDK 洗面所 風呂 トイレ 2F 6.5洋 WIC 5.06洋 5.06洋 5.03洋 小屋裏収納 トイレ
向き
-
建物面積(坪数)
97.50㎡(29.49坪)
土地面積(坪数)
108.57㎡(32.84坪)
建ぺい率 /
容積率
-/-
築年月
2024年4月(築1年)
土地権利
所有権
土地
(敷金 / 保証金)
- / -
建物構造
木造 / 2階建
傾斜地部分面積
-
路地状敷地
-
私道負担面積
-
セットバック
高圧線下面積
-
施工会社
-
用途地域
第一種住居
地目 / 地勢
- / -
接道状況
-
国土法届出要否
不要
都市計画
-
総区画数 /
販売区画数
5区画/-
現況
完成済み
その他
法令上の制限
-
取引態様
一般媒介
引渡し
即時
取引条件の
有効期限
2026年03月18日

設備条件

設備条件
  • 閑静な住宅地 / ルーフバルコニー / オール電化 / 駐車2台可 / 食器洗い乾燥機 / システムキッチン / カウンターキッチン / 浴室乾燥機 / 温水洗浄便座 / トイレ2ヶ所 / 浴室1坪以上 / 床下収納 / ウォークインクロゼット / 屋根裏収納 / TVモニタ付インターホン / 複層ガラス
設備(その他)
    -

その他

物件番号
95531401
管理コード
-
建築確認番号
-
情報更新日
2026年03月11日
次回更新予定日
2026年03月18日
取扱会社
  • 株式会社 廣島明和
  • 広島県広島市西区中広町2丁目1-1 第一太田ビル 202
  • TEL:082-942-0884
  • 広島県知事 (3) 第009897号

周辺施設

  • アルゾ 高陽深川店の画像

    スーパー

    アルゾ 高陽深川店

    1762m(23分)

支払いシミュレーション

月々の支払額
購入希望物件価格
万円
頭金
万円
金利
%
返済額(ボーナス1回分)
万円
返済期間

※ボーナスは自動で年2回分で計算されます。

近隣の物件

  1. 安佐北区口田南4丁目

    広島市安佐北区口田南4丁目

    3LDK (81.56㎡)

    2,980万円

  2. 安佐北区白木町大字秋山

    広島市安佐北区白木町大字秋山

    5LDK (164.79㎡)

    2,480万円

  3. ●安佐北区落合南3丁目No.1

    広島市安佐北区落合南3丁目

    3SLDK (105.30㎡)

    3,280万円

よく見られている物件

  1. 可部南1丁目 全5棟

    広島市安佐北区可部南1丁目

    4SLDK (97.50㎡)

    2,880万円

  2. 安佐南区長束5丁目

    広島市安佐南区長束5丁目

    4LDK+S(納戸) (128.75㎡)

    5,150万円

  3. 佐伯区皆賀1丁目 No.3

    広島市佐伯区皆賀1丁目

    4LDK (104.33㎡)

    4,980万円

  4. 安佐南区八木9丁目

    広島市安佐南区八木9丁目

    4LDK (96.05㎡)

    2,590万円

可部南1丁目 全5棟

可部南1丁目 全5棟

2,880万円

-

4SLDK(97.50㎡)

お気軽にお問い合わせください

無料お問い合わせ

株式会社 廣島明和

082-942-0884

9:00〜19:00

(休:年末年始のみ)