相田5丁目

2,720万円

広島県広島市安佐南区相田5丁目29

広島高速交通アストラムライン「上安」駅徒歩19分

広島高速交通アストラムライン「安東」駅徒歩19分

バス「あさおか台中」バス停

価格
2,720万円
間取り/建物面積
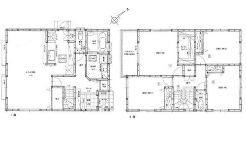
4LDK/105.61㎡
所在地
広島県広島市安佐南区相田5丁目29
築年
2023年7月(築2年)
駐車
交通

広島高速交通アストラムライン上安」駅 徒歩19分

広島高速交通アストラムライン安東」駅 徒歩19分

バス「あさおか台中」バス停下車 徒歩2分

相田5丁目の基本情報

物件名
相田5丁目
価格
2,720万円
建物面積
105.61㎡
土地面積
38.38坪(126.90㎡)
築年月
2023年7月(築2年)
総戸数
-
所在地
広島県広島市安佐南区相田5丁目29
交通

広島高速交通アストラムライン上安」駅 徒歩19分

広島高速交通アストラムライン安東」駅 徒歩19分

バス「あさおか台中」バス停下車 徒歩2分

相田5丁目の詳細情報

設備条件
  • 閑静な住宅地
  • 駐車2台可
設備(その他)
    -
駐車場/月額
有/0円
土地権利
所有権
国土法届出
不要
用途地域
第一種低層住居専用
取引態様
一般媒介
引渡し
即時

相田5丁目で募集中の物件

  1. 31.94坪 (105.61㎡)

    2,720万円(85.16万円/坪)

近隣の物件

  1. 広島市安佐南区祇園7丁目

    3LDK (103.92㎡)

    4,280万円

  2. 広島市安佐南区高取南1丁目

    3SLDK (115.09㎡)

    4,490万円

  3. 広島市安佐南区長楽寺1丁目

    4SLDK (120.06㎡)

    3,383万円

  4. 広島市安佐南区長束1丁目

    3SLDK (130.00㎡)

    3,780万円

相田5丁目

お気軽にお問い合わせください

無料お問い合わせ

株式会社 廣島明和

082-942-0884

9:00〜19:00

(休:年末年始のみ)